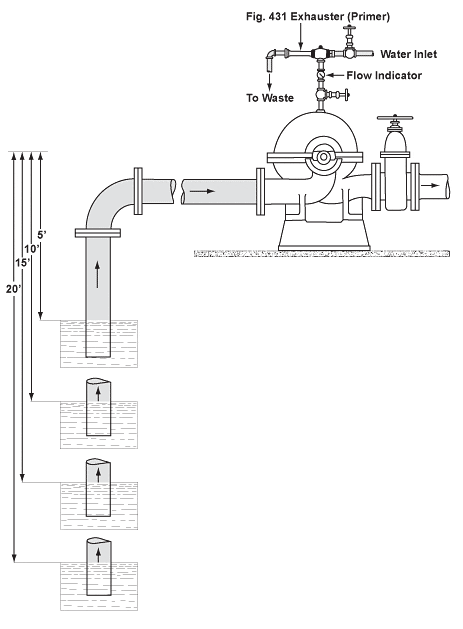
The Fig. 484 Single-Nozzle Water Jet Exhauster operates on the jet principle. Motive water is supplied to the exhauster under pressure discharging through spray nozzles in a high-velocity, solid jet. Air or vapors are drawn into the body of the exhauster by the draft-producing action of the water jet. The water and air are intimately mixed in the converging section of the venturi or diffuser. In the diverging section, energy of velocity is converted to energy of pressure and the water-air mixture is slowed to a velocity just sufficient to overcome slight backpressure.


Read More
The Fig. 464 General Purpose Single-Nozzle Water Jet Exhauster is designed for laboratory or other general purposes. The Fig. 464 General Purpose Single-Nozzle Water Jet Exhauster is meant to supplement the Fig. 484 Water Jet Exhauster and be used when efficiency is not of prime importance.


Fig. 265 & Fig. 485 Water Jet Exhausters are similar in design to the Fig. 464 Water Jet Exhauster and are made for liquid pumping and mixing operations and for handling some solids where requirements do not necessitate capacities greater than those obtained with sizes up to and including 3″.


Due to simplicity of design, exhausters do not have any moving parts and are subject to little wear. Initial operation and maintenance costs are minimal. Water Jet Exhausters are easily installed, are versatile and reliable, operate under severe conditions, are used where other pumping devices would not be practical, and are ideal for intermittent service.

