Revision 3
September 2012
Schutte & Koerting Company presents this Desuperheater Manual as a tool to provide detailed information with respect to the sizing, design, installation, operation, and maintenance of desuperheaters.
S&K understands that a manual is not a substitution for personal contact with factory personnel. Therefore, questions pertaining to this manual should be directed as follows:
Neil Hughes
Vice President and Manager, Power & Process Business Unit
Phone: (215) 639-0900
Fax: (215) 639-1597
75 Years of Service
Schutte & Koerting has manufactured desuperheating equipment for the power, process and petrochemical industries for over 75 years. Schutte & Koerting desuperheaters are designed to efficiently lower the temperature of steam, utilizing various mechanisms for cooling, based on the customer’s available resources. High pressure liquid, low pressure liquid, and high pressure gas can be used to remove the necessary heat from steam or other gases.
Schutte & Koerting desuperheaters are characterized by a wide variety of models, configurations, sizes and choice of materials. S&K Desuperheaters are also characterized by having no moving parts, thus providing easy maintenance; no special supports, allowing easy installation; and thermal liners are not required except in very special applications.
Since the advent of superheated steam over 75 years ago the need for desuperheating of such steam has been required and since that time Schutte & Koerting has been filling this need.
Superheated steam is the most efficient means in producing mechanical work. The use of superheated steam was based in the power industry for the main turbines. The superheated steam contains large amounts of potential energy. The additional energy absorbed beyond the saturation point further excites the water molecules already in the gaseous state. When applied to a turbine, the potential energy stored in the excited molecules is transformed into kinetic energy as the steam expands. In addition, superheated steam is “dry”. It doesn’t contain any condensate droplets that would be highly detrimental to the turbine and other mechanical equipment.
Steam can be produced with energy from various sources, including waste heat and combustible by-products, and steam is an efficient way to transfer energy. Steam applications can be broken down into two primary categories: motive power and heat transfer.
As a source of motive power, steam can be used to drive turbines which drive generators, pumps, compressors, and similar types of rotating equipment. Steam can be used in this manner to do mechanical work directly or to generate electricity for use on site or for sale back to the power grid.
Steam is also used as a source of heat energy. Steam is used to heat process fluids, air, and water. Steam’s popularity as a heating medium rests on the fact that water absorbs large amounts of energy when converted into steam, and gives that heat back up again when it turns from steam to condensate. This is known as the heat of vaporization.
However, the advantages realized from the use of superheated steam for mechanical applications do not carry over to heating applications. Also, there can be distinct disadvantages in situations when superheated steam is provided to equipment not readily capable of handling such steam.
The use of superheated steam in heating applications is extremely inefficient. This is apparent by the amount of heat liberated as a function of the temperature when the steam is in the superheated state. For example, assume that steam at 165 psia and 376°F is cooled 10°F, to its saturation temperature of 366°F. The total heat liberated is 6.4 BTU/lb.
However, if it is cooled 10°F further, through the saturation region, condensation occurs and the total heat liberated is 867.7 BTU/lb. Also note that energy is not being lost in the desuperheating process. Desuperheating simply creates more steam with fewer Btu’s per pound by injecting water into the steam, which evaporates to produce steam with a lower enthalpy.
In summary, the process of desuperheating converts a given amount of superheated steam into a greater amount of steam closer to the saturation point, so that the resulting steam can more readily be used for heat transfer
applications.
Another area where desuperheaters are critical is in the protection of equipment that cannot handle superheated steam; for instance, when the superheated steam to a turbine generator needs to be bypassed to the main turbine condenser. Since the main turbine condenser is not designed to handle the high temperatures associated with the superheated steam, damage is avoided with the use of a desuperheater. This same principle applies to many different types of equipment and applications.
Desuperheaters are commonly found in industries such as Chemical, Petrochemical, Pulp & Paper, Utility, Food, Pharmaceutical, and so on — essentially anywhere there is steam.
Specifically, desuperheaters are used on inlets to heat exchangers, in lines to jacketed vessels, on turbine extraction and bypass lines, in dormitory heating systems, in services with pressure reducing valves, in emergency exhaust systems and many other places.
Desuperheating is accomplished in one of the following ways:
This method injects water over a large surface area, whereby steam passes over, around and through water wetted packing, effectively accomplishing heat transfer by pure temperature gradients across a large surface area.
This process, which is the most common, utilizes velocity to shear water particles, then introduces these particles into a turbulent region where heat transfer is accomplished.
The internal design produces a lower pressure region, essentially syphoning in the cooling water. This unique design means the required water pressure need only be as high as the steam line pressure.
This method uses high pressure steam to effectively shear the water particles and then suspends the mixture for a period of time within a venturi, thus allowing more vapor / water contact.
The internal design produces a lower pressure region, essentially syphoning in the cooling water. This unique design means the required water pressure need only be as high as the steam line pressure.
This process utilizes higher water pressure and the corresponding pressure differential across a nozzle as a means to shear the water particles and introduce the water into the steam.
Determination of Required Water Flow
A simple heat balance is used to determine required water flow. Calculation is as shown in the following example. Given 50,000 pph steam at 300 psig and 600° F, reduce pressure* to 50 psig and temperature to 340° F (42 superheat). To solve, check steam tables to find enthalpy of both conditions. The enthalpy for 50,000 pph, 300 psig, 600° F is 1313.6 Btu per pound. The enthalpy for 50 psig, 340° F is 1202.0 Btu per pound. To find the heat that must be removed from the steam, subtract the enthalpy of steam at 50 psig and 340° F from the enthalpy of steam at 300 psig and 600° F, as 1313.6 – 1202.0 = 111.6 Btu to be removed per pound. Given available water at 50 psig(water pressure must equal steam pressure)** and 200° F, determine the enthalpy of the water from available tables as168.0. To find the heat to be gained by the water, subtract the enthalpy of the water from the enthalpy of the desired steam condition, such as 1202.0 – 168.0 = 1034.0 Btu. Use the following to determine pph water required to reduce steam to desired temperature.

To convert pph to gpm, divide pph water by 500 x Sp. Gr., 5400 ÷ [500(.965)] = 11.2 gpm water required.
*To reduce pressure, a reducing valve should be used not less than 5 pipe diameters upstream of the desuperheater.
**For Type 6910, 10 psi maximum above steam pressure.
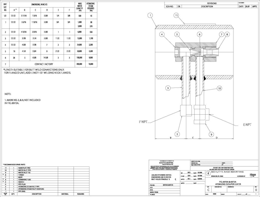
NOTE: Consult capacity table in Bulletin 6D-E for proper atomizing head size for Type 6970 Desuperheater.
Refer to curve on this page for required pipe size versus steam load for Types 6910, 6940, 6950, 6952, 6953, 6970, 6980, and 6985.
For sizing of Types 6905 and 6940M, consult factory.

These curves will help to select the proper main line for desuperheated steam. They include correction for superheated steam. Using same example as noted under water calculation, note the following: To use the curves, find the steam pressure line (50 psig) and following slanting superheat correction line until it intersects line representing 42ºF superheat. Follow horizontal line across to right until it intersects line representing steam flow pph (50,000 pph). This point falls between 8” and 10” (pipe ID). A 10” * unit is required if Types 6910, 6940, 6950, 6952, 6953, or 6985 is desired. A 10” pipe ring is required if Type 6970 is chosen.
*When the intersecting point falls between two ID’s, always use the larger.
For Types 6910, 6940, 6950, 6980 and 6985 Desuperheaters. This nomograph can be used to estimate pressure drop through S & K Desuperheaters as shown in the example: Example: If a Desuperheater is desired for a discharge capacity of 70,000 lb per hour steam at 100 psig, 100° F final superheat, the sizing chart, Figure 1,shows that 10” size is required. To determine the pressure drop: Identify 100 psig on the discharge pressure scale at the left of the nomograph and follow line (A) to the 100° F line. Draw a horizontal line (B) to the discharge pressure scale to determine equivalent saturated pressure. From this point draw line (C) to Desuperheater size (10”). From the point of intersection of line (C) with the pivot line, draw line (D) through inlet steam flow (70,000 lb per hour) to the pressure drop pivot line. From this point draw horizontal line (E). The points of intersection with the pressure drop lines indicate a pressure drop of 8.25 psi for Type 6910; 5.5 psig for Type 6940 and 6950 and 2.5 for Type 6980. By calculation, the inlet pressure to the desuperheater would be 108.25 psig for Type 6910; 105.5 psig for Types 6940 and 6950 and 102.5 for Type 6980. If lower pressure drops are required, the next size desuperheater should be selected and the corresponding pressure drops determined. NOTE: Pressure drop through Types 6952, 6953, and 6970 is negligible.
Guidelines to Minimum Distance To Temperature
Element Placement Desuperheater piping arrangement, straight length requirements, upstream and downstream, and temperature element placement have become very important parameters in desuperheating stations. Temperature element placement is, however, the most critical parameter of those listed. Table 1 should be used as a guide to minimum allowed distance to bulb, regardless of horizontal or vertical mounting. S&K normally recommends that this distance be straight. However, as long as precaution is exercised, bend and curve scan be made within 10’ to 15’ from unit discharge connection. S&K recommends five pipe diameters upstream of straight run if desuperheater is used in conjunction with pressure reducing valve.

No desuperheater operates alone; it is always part of a system made up of many interacting components. Therefore, turndown- more properly, the ratio of
maximum to minimum flows – of the desuperheater is no greater than that of the system control components. To calculate preliminary desuperheater turndown available for Types 6940, 6950, and 6972, use the following calculation: If mounted horizontally:
If mounted horizontally:

If mounted vertically:

Noting that operating velocity =

To calculate desuperheater turndown of the Type 6970 unit, it must be noted that turndown is not a function of velocity when using the recycle feature.

Turndown capacity available for other units (Types 6905, 6910, 6952, 6953, and 6985) are available from the factory

















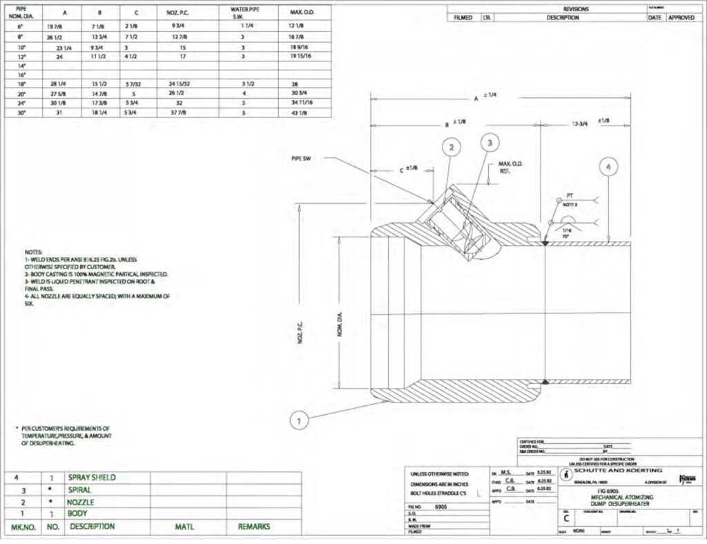
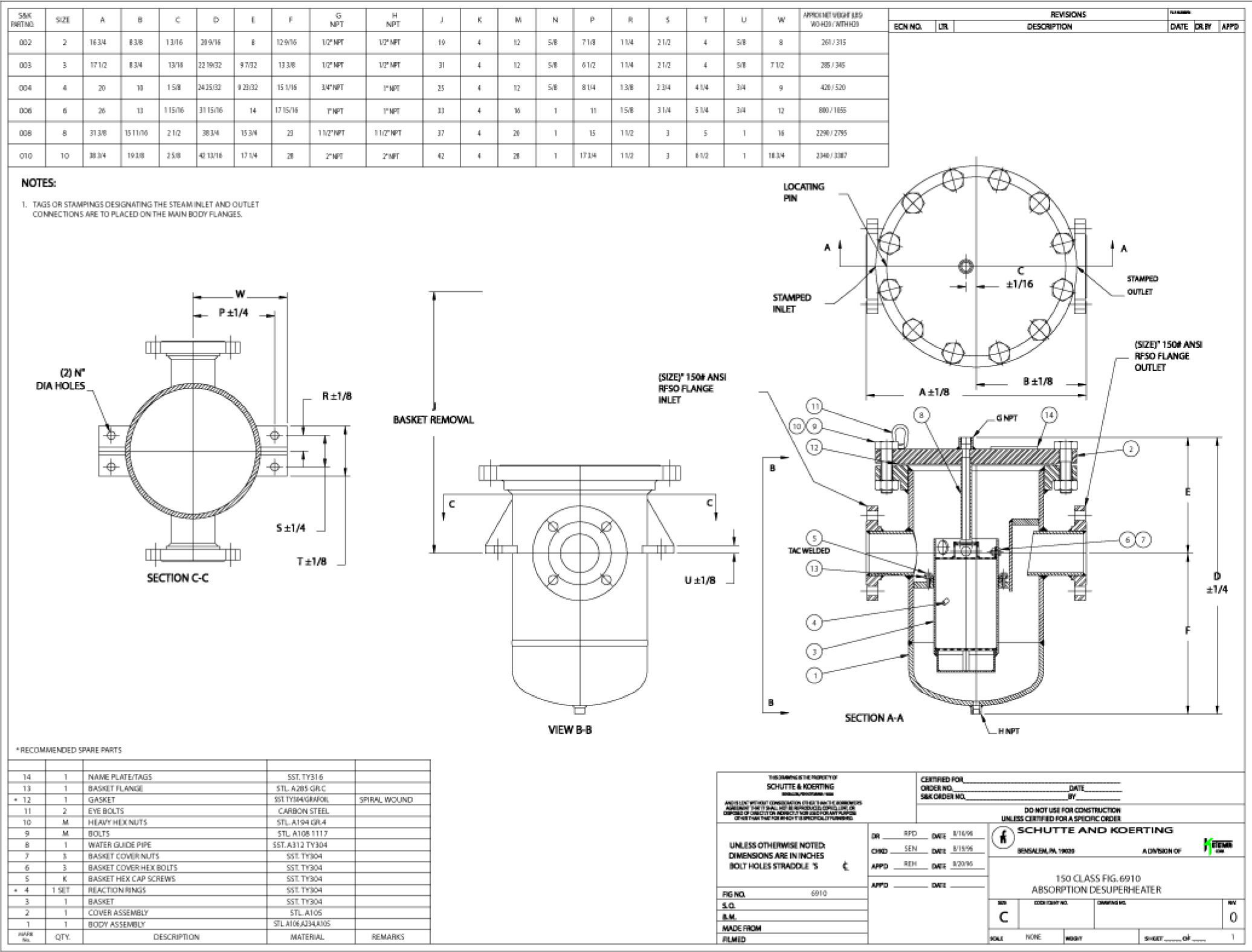
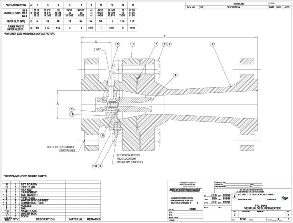
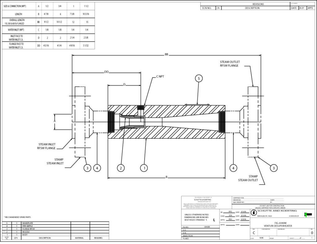
Outline & Dimensional Drawing





















